Продается 3-к квартира Амурский район, 2-й Микрорайон ул 23
Коротко
- Номер объявления
- 32900822
- Дата подачи
- 03.03.2026
- Комнат
- 3
- Обновленно
- 16.03.2026
- Тип
- Квартиры
- Улица
- 2-й Микрорайон ул
- Номер дома
- 23
- Вариант
- продажа
- В ипотеку
- 1
- Этаж
- 2
- Этажность
- 5
- Материал стен
- Кирпич
- Балкон
- Балкон
- Площадь общая
- 62.3
- Площадь жилая
- 47.3
- Площадь кухни
- 5.6
- Год постройки
- 1972
- Цена
- 2 000 000 руб.
- Просмотров
- 20
Контакты

0
- Агент:
- Кравцова Ирина
- Телефон:
- 89098276199
Остерегайтесь мошенников! Не вносите предоплату за услуги риелторов до личного посещения и осмотра объекта недвижимости!
Описание
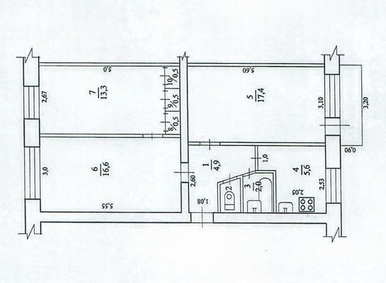
Арт. 131286765 Предлагаем к просмотру уютную трёхкомнатную квартиру с функциональной планировкой, расположенную на комфортном 2 этаже. Пространство организовано максимально удобно: изолированная комната имеет выход на остеклённый балкон с видом во двор — минимум шума и максимум комфорта; дальняя спальня расположена отдельно от основной зоны — идеальное решение для обустройства приватной семейной зоны или тихой спальни. Квартира в хорошем жилом состоянии — выполнен косметический ремонт, что позволяет заехать и жить без дополнительных вложений. По всей квартире уложен практичный линолеум. Установлены современные пластиковые окна Раздельный санузел. Ванная комната отделана современной кафельной плиткой, туалет оформлен панелями ПВХ. Кухня компактная, но функциональная — достаточно места для размещения кухонного гарнитура и обеденной зоны. Квартира отлично подойдёт для семьи с детьми или для тех, кто ценит удобство планировки и тишину. Хороший район, самый центр поселка, все необходимое для комфортной жизни в шаговой доступности! А за вашими маленькими школьниками вы сможете наблюдать прямо с балкона, так как начальная школа расположена рядом с домом! Звоните, чтобы договориться о просмотре! Объект готов к продаже! Агентство недвижимости "ДВ-Гарантия REAL ESTATE" оказывает высококвалифицированные услуги в решении самых сложных жилищных вопросов. На протяжении 10 лет мы обеспечиваем желаемый результат для тысяч наших клиентов. Если вам необходимо:Выгодно продать, купить, обменять недвижимость. Получить положительное решение по ипотеке даже с плохой кредитной историей. Приобрести объект в ипотеке с запрещением на регистрационные действия, арестами, долгами. Произвести размен и разъехаться. Оформить приватизацию. Продать ипотечную недвижимость.
Цена 2 000 000 руб. /32 103 за м2
Если вы позвонили по объявлению и выяснили, что объекта не существует, либо с вас требуют предоплату за просмотр, оставьте жалобу!
Дополнительно
3-комн. Квартиры, Амурский район, Цена до 2 200 000, от 56 м2




Социальные кнопки